Parcelle_Avrioux_3
Fév 22
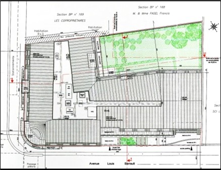
Publié à 438 × 337 dans Quelle lutte contre l’imperméabilisation des sols dans le quartier de la place Abrioux ?
Publié le 22 février 2021. Bookmarquez ce permalien. Poster un commentaire.
Fév 22
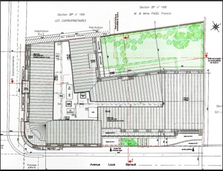
Publié à 438 × 337 dans Quelle lutte contre l’imperméabilisation des sols dans le quartier de la place Abrioux ?
Publié le 22 février 2021. Bookmarquez ce permalien. Poster un commentaire.
Une information à partager ?
Un reportage souhaité dans votre quartier ?
Nous contacter par email via :
aulnaycap@gmail.com
ou par téléphone : 06.20.88.92.19
Liens utiles :
Dentiste paris 16 - Ari Elhyani
Site hébergé par Wordpress.com :
Automattic Inc. 132 Hawthorne Street San Francisco, CA 94107 United States of America
Directeur de publication : Arnaud Kubacki
Poster un commentaire
Comments 0